Hermits Hut Cabin with Lake View | Cabin in Paul Smiths

1 Bedroom Cabin in Meacham, Paul Smiths
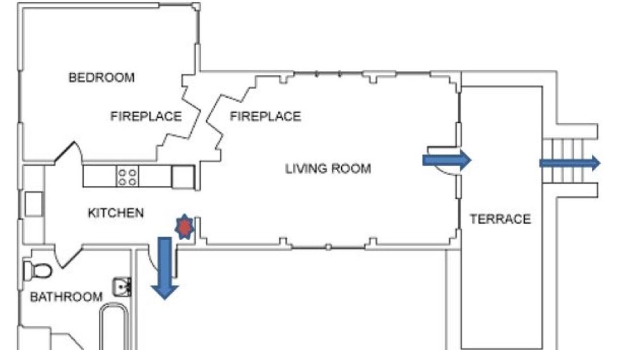
Last in the row of Ridge line cabins situated less than 100 feet from the lake. Secluded, quiet and romantic with two fireplaces. Hand-hewn post and beam living room and dining room. Galley kitchen. Bedroom with king bed, sitting area. Full bathroom with claw-foot tub and separate shower. Stone terrace overlooking the lake.
The Great Room: The social retreat of an Adirondack Great Camp is the Great Room, a rustically grandiose meeting place for formal and informal activities. White Pine Camp's Great Room is available to guests at all times and provides a comfortable setting with furnishings typical of the era, including stick furniture, leather couches and decorative taxidermy. Firewood in the huge flagstone fireplace is always laid for guests to light at their leisure.
The Overlook: Under a canopy of cathedral pines and overlooking the Japanese Tea House and Osgood Pond is the Overlook. With its expansive vintage red tile patio, pergola, Adirondack furniture and fire pit, the Overlook is a popular spot for a lunch time picnic, late afternoon cocktails or an evening campfire with s'mores.
The Bowling Alley: Part of the Addison Mizner architectural design, the bowling alley was added to the game room in 1911. Yes, the set-your-own-pins bowling alley is still functioning and is much enjoyed by guests young and old. It also boasts a large stone fireplace, pool table and intimate back porch with incredible sunset views of Osgood Pond.
Japanese Tea House: Much coveted by the wealthy ladies of the Great Camps was a Japanese Tea House on an island. Olive White, wife of the original owner, was determined to have one as well. Today the Tea House is one of the most sought-after photo subjects in the Adirondacks. Our guests enjoy unlimited use of the Tea House island as a quiet getaway,
Hermits Hut Cabin with Lake View is located in Meacham. Hermits Hut Cabin with Lake View provides accommodation, featuring Security/Safety, Wellness Facilities, Barbecue/Outdoor Cooking, among other amenities. This Cabin features Security/Safety, Wellness Facilities, Barbecue/Outdoor Cooking, to make your stay a comfortable one.
Hermits Hut Cabin with Lake View has 1 Bedroom , 1 Bathroom, and max occupancy of 2 people. The minimum rental for this property is 1 nights, but this can change depending on the season you plan on staying. Previous guests have given good rated it, and VRBO labeled it a top-rated Cabin because of the excellent services rendered by the owner or manager of this Cabin, and has consistently provided great experiences for their guests. Most families or guests that use it recommend it to their friends and some of them are repeat guests. Cabin has a friendly neighborhood, and the Meacham has interesting places to visit. If you want to learn more about the Cabin in Meacham, such as places to visit and things to do nearby, you can check below to learn more.
Amenities
Policies
Extra-person charges may apply and vary depending on property policy government-issued photo identification and a credit card, debit card, or cash deposit may be required at check-in for incidental charges host has indicated there is a smoke detector on the property host has not indicated whether there is a carbon monoxide detector on the property; consider bringing a portable detector with you on the trip note from host: weddings & private parties, group parties parties and events are allowed on site safety features at this property include a fire extinguisher special requests are subject to availability upon check-in and may incur additional charges; special requests cannot be guaranteed this property is managed through our partner, vrbo. you will receive an email from vrbo with a link to a vrbo account, where you can change or cancel your reservation