Finlays Cove on the Lake | House in Colchester

4 Bedroom House in Colchester
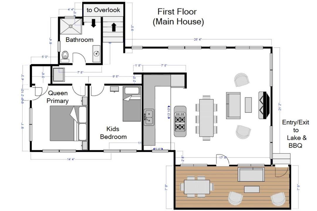
Featuring barbecue facilities, Finlays Cove on the Lake provides accommodations in Colchester. This beachfront property offers access to a patio. The vacation home features a sun terrace, a 24-hour front desk, and free Wifi is available throughout the property. The vacation home consists of 4 bedrooms, a living room, a fully equipped kitchen with a dishwasher and a coffee machine, and 2 bathrooms with a walk-in shower and a bath. Guests can take in the views of the mountain from the balcony, which also has outdoor furniture. The vacation home offers bed linen, towels, and laundry service. You can play tennis at the vacation home, and the area is popular for canoeing and hiking. Cycling and fishing can be enjoyed nearby, while a bicycle rental service, a private beach area and water sports facilities, are also available on-site. University of Vermont is 12 miles from Finlays Cove on the Lake, while Centennial Field is 13 miles away. Burlington International Airport is 13 miles from the property, and the property offers a paid airport shuttle service.
Finlays Cove on the Lake is located in Colchester.
This 4 Bedrooms House is suitable for tourists and travelers. It has several amenities that would guarantee your comfort. These amenities include: Entertainment, TV, Private Beach, and several others. This is a 4 star rated property and has over 1 review with the average score of 10 . Coming to Colchester and needing a place to stay? Be it for work or for leisure, consider staying at this House for your next visit, you will surely love it.
You can check the reviews and description of this 4 Bedrooms House if you want to learn more about this place in Colchester. These details are authentic, as they are provided by our partner, booking.com.
This Finlays Cove on the Lake in Colchester is well equipped and has all facilities that have been listed below. Please note that these details were shared to us by booking.com for the listed “Finlays Cove on the Lake”. We solely rely on their shared details and are regarded as “accurate”. If you have any concerns about the information or accuracy describing this House, please let us know.
Amenities
Facility Overview
-
Shared kitchen
-
Canoeing
-
Beach
-
Water sports facilities on site
-
Cycling
-
Private beach area
-
Tennis court
-
Fishing
-
Bike tours
-
Hiking
-
Beachfront
-
Outdoor play equipment for kids
-
Board games/Puzzles
-
Smoke-free property
-
Wifi in all areas
-
Family rooms
-
Non-smoking rooms
-
24-hour front desk
-
Grocery deliveries
-
Laundry
-
Private check-in/out
-
Shared lounge/TV area
-
Airport shuttle (additional charge)
-
Airport shuttle
-
Wifi
-
Free Wifi
-
Internet
-
Outdoor furniture
-
Outdoor fireplace
-
BBQ facilities
-
Sun deck
-
Terrace
-
Smoke alarms
-
Guests have the option to cancel any cleaning services for their accommodation during their stay
-
Guest accommodation sealed after cleaning
-
Use of cleaning chemicals that are effective against coronavirus
-
Guest accommodation disinfected between stays
-
Linens, towels, and laundry washed in accordance with local authority guidelines
-
Staff follow all safety protocols as directed by local authorities
-
Contactless check-in/out
-
Physical distancing rules followed
-
Cashless payment available
-
All plates, cutlery, glasses, and other tableware sanitized
-
Beach chairs/Loungers
-
Airport pickup
-
Airport drop-off
Policies
Guests are required to show a photo id and credit card upon check-in. please note that all special requests are subject to availability and additional charges may apply.
Reviews
Room Arrangement
Room Info | Facilities |
---|---|
Four-Bedroom House
Room Type:
Vacation Home
Room Size:
204 m2
|
Food & DrinkMinibar, Tea/Coffee makerInternetInternet facilities, Wireless internetBathroomWalk-in shower, Conditioner, Body soap, Shower, Bathtub or shower, Shared toilet, Toilet paper, Bathtub, Shampoo, Toilet, Towels, Private bathroomOutdoorsOutdoor furniture, Barbecue, Balcony, Outdoor dining area, Terrace, PatioKitchenKitchen, Electric kettle, Wine glasses, Coffee machine, Washing machine, Dryer, Kitchenware, Stovetop, Microwave, Refrigerator, Dining table, Oven, Toaster, DishwasherLiving AreaDining area, Sitting area, Desk, FireplaceMedia & TechnologyVideo, CD playerGeneralCarbon monoxide detector, Smoke Alarm, Trash cans, Private entrance, Fire extinguisherViewLandmark view, Garden view, Mountain view, Lake view, ViewBedroomLinens, Wardrobe or closetAccessibilityUpper floors accessible by stairs onlyRoom AmenitiesClothes rackEntertainment & Family ServicesBoard games/puzzlesPool and SpaPool towels |